Giá sản phẩm rẻ hơn khi mua số lượng nhiều
Vui lòng liên hệ để nhận mức Chiết khấu tốt nhất.
(Vui lòng thêm vào báo giá để nhận báo giá hoặc qua email: sale.thietbidienhts@gmail.com)
Công ty Cổ phần Thương mại Dịch vụ HECICO tự hào là nhà phân phối nhiều thương hiệu cột đèn chiếu sáng đường phố chất lượng tại Hải Phòng.

Cột đèn chiếu sáng là dòng sản phẩm thế mạnh của Công ty Cổ phần Thương mại Dịch vụ HECICO. Chúng tôi cam kết, sản phẩm của chúng tôi phân phối luôn đạt chất lượng theo tiêu chuẩn BS 729, ASTM A 123, chiều dày lớp mạ kẽm tối thiểu trên bề mặt là 65um (450 g/m2). Với ưu điểm nổi trội không hàn nối ngang thân, gia công sắc nét, không chi tiết thừa, kiểu dáng hiện đại.
Các dòng sản phẩm cột đèn chiếu sáng:
- Cột đèn bát giác liền cần.
- Cột đèn tròn côn liền cần.
- Cột đèn bát giác rời cần.
- Cột đèn tròn côn rời cần.
- Cột đèn cao áp cần cánh buồm đơn CBD.
- Cột đèn pha.
Toàn bộ trụ đèn thiết kế và sản xuất chịu được tốc độ gió đến 45m/s(tương đương vùng áp lực gió 125 daN/m2).
- Đối với những vùng gió và địa hình khác, cột sẽ được thiết kế riêng theo yêu cầu đặt hàng.
- Thiết kế và chế tạo phù hợp với các yêu cầu theo tiêu chuẩn BS 5649,TR7. Cột được tính toán thiết kế với sự trợ giúp bởi phần mềm tính cột chuyên dụng của Mỹ.
- Nguyên liệu sản xuất cột đèn phù hợp với tiêu chuẩn JIS 3101, JIS 3106.
- Cột được hàn dọc tự động trong môi trường khí bảo vệ CO2, theo tiêu chuẩn BS 5135, AWS D 1.1
- Thân cột đèn dưới 12m được sản xuất liền thân, không hàn nối ngang thân.
- Cột được mạ kẽm nhúng nóng, phù hợp với tiêu chuẩn BS 729, ASTM A 123. Chiều dày lớp mạ tối thiểu trên một mặt là 65um(450 g/m2) đối với thép tấm có độ dày tỳ 3 đến 5 mm.
Cột đèn bát giác liền cần:

Vật liệu sản xuất từ thép SS400 mạ kẽm nhúng nóng. Cần vươn 1.5m gốc 15(độ) cửa cột khóa chìm, đường kính đỉnh 58mm.
| Tên Cột Đèn | Thép dày | Đường Kính Gốc | Mặt bích đế cột | Độ Cao Lắp đèn |
|
Cột đèn tròn côn liền cần 6M BGC6 |
3.0mm | D126mm | 300X300X10mm | 6m |
|
Cột đèn tròn côn liền cần 7M BGC7 |
3.0mm | D136mm | 300X300X10mm | 7m |
|
Cột đèn tròn côn liền cần 8M BGC8 |
3.0mm | D146mm | 300X300X10mm | 8m |
|
Cột đèn tròn côn liền cần 9M BGC9 |
3.5mm | D156mm | 400X400X12mm | 9m |
|
Cột đèn tròn côn liền cần 10M BGC10 |
3.5mm | D166mm | 400X400X12mm | 10m |
|
Cột đèn tròn côn liền cần 11M BGC11 |
4.0mm | D176mm | 400X400X12mm | 11m |
Cột đèn tròn côn liền cần:

Thân cột hình tròn côn bằng thép dày từ 3.0 đến 4.0mm mạ kẽm nhúng nóng. Đường kính đỉnh D58mm, đường kính đáy từ 131 đến 183mm, mặt bích đế cột từ 300x300x10mm đến 400x400x12mm, cần đèn vươn 1.5m góc 15độ, cửa cột khóa chìm, đường kính đỉnh 58mm, độ cao lắp đèn từ 6 đến 11m.
| Tên Cột Đèn | Thép dày | Đường Kính Đáy | Mặt bích đế cột | Độ Cao Lắp đèn |
|
Cột đèn tròn côn liền cần 6M TCC6 |
3.0mm | 131mm | 300X300X10mm | 6m |
|
Cột đèn tròn côn liền cần 7M TCC7 |
3.0mm | 141mm | 300X300X10mm | 7m |
|
Cột đèn tròn côn liền cần 8M TCC8 |
3.0mm | 152mm | 300X300X10mm | 8m |
|
Cột đèn tròn côn liền cần 9M TCC9 |
3.5mm | 162mm | 400X400X12mm | 9m |
|
Cột đèn tròn côn liền cần 10M TCC10 |
3.5mm | 173mm | 400X400X12mm | 10m |
|
Cột đèn tròn côn liền cần 11M TCC11 |
4.0mm | 183mm | 400X400X12mm | 11m |
Cột đèn chiếu sáng bát giác rời cần BG-D78 và tròn côn rời cần TC-D78:

Trụ đèn cao áp kiểu bát giác và trong côn rời cần mạ kẽm nhúng nóng. Thân cột bằng ống thép hình bát giác côn, được thiết kế để lắp rời với các loại cần đèn cao áp, kích thước đầu cột D78mm được tiêu chuẩn hóa cho phép lắp lẫn nhiều kiểu cần đèn chiếu sáng khác nhau, chiều cao cột từ 5~11mét.
Đặc điểm nổi bật:
- Trụ đèn được thiết kế cho phép lắp nhiều kiểu cần đèn khác nhau, kết cấu cần đèn theo kiểu nắp chụp vào đầu ống nên hoàn toàn tránh được nước mưa chảy vào bên trong thân trụ đèn, đảm bảo độ bền và an toàn các thiết bị điện lắp ở cửa cột.
- Thân trụ đèn không mối nối hàn ngang thân. Mối hàn sườn chạy dọc theo thân cột đảm bảo theo tiêu chuẩn AWS D1.1 được thực hiện trên máy bóp hàn cột tự động ứng dụng công nghệ hàn MIG/MAG trong mội trường bảo vệ khí CO2 hoặc hàn tự động dưới lớp thuốc bảo vệ.
- Vật liệu chế tạo bằng thép cacbon thông dụng có cơ tính phù hợp với loại thép SS400 theo tiêu chuẩn JIS 3101 hoặc tương đương.
- Cột thép được mạ kẽm nhúng nóng theo tiêu chuẩn ASTM123.
Các loại cột đèn chiếu sáng bát giác rời cần BG-D78:
- Cột đèn bát giác rời cần BG-D78 lắp với các kiểu cần đơn CD
- Cột đèn bát giác rời cần BG-D78 lắp với các kiểu cần kép CK
Các loại cột đèn chiếu sáng tròn côn rời cần TC-D78:
- Cột đèn bát giác rời cần TC-D78 lắp với các kiểu cần đơn CD
- Cột đèn bát giác rời cần TC-D78 lắp với các kiểu cần kép CK
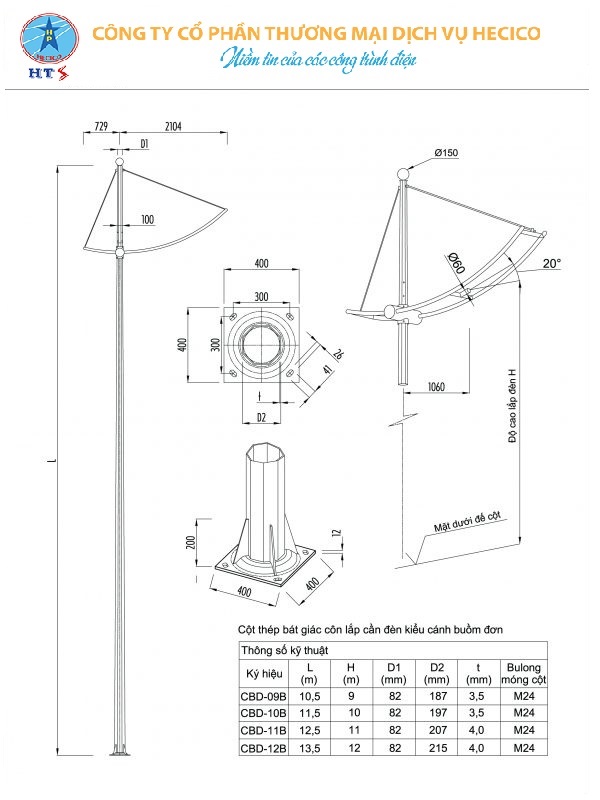
Cột đèn cao áp cần cánh buồm đơn CBD:

Một số hình ảnh thực tế:


BÁN LẺ, GIÁ SỈ
Giá thành sản phẩm tốt nhất trên thị trườngUY TÍN THƯƠNG HIỆU
Hecico là thương hiệu được yêu thích và lựa chọnCHĂM SÓC 24/7
Hotline: 0379 699 399BẢO HÀNH CHÍNH HÃNG
Hàng hóa được bảo hành nhanh chóng theo quy chuẩn nhà sản xuất
Hecico là thương hiệu được yêu thích và lựa chọn

Hỗ trợ chăm sóc khách hàng 24/7, Liên hệ giải đáp mọi thắc mắc

Giá thành sản phẩm tốt nhất trên thị trường

Hàng hóa được bảo hành nhanh chóng theo quy chuẩn nhà sản xuất